物件名称
エンゼルハイム小禄金城 503号室
所在地
那覇市金城5丁目16−2 地図を見る
販売価格(税込)
3,680万円
交通
【モノレール】『小禄駅』徒歩約3分
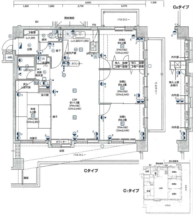
間取り
4LDK
間取り詳細
洋6.0・洋5.5・洋5.4・和6.0・LDK17.5
専有面積
81.34㎡(24.60坪)
バルコニー面積
19.66㎡
建物構造
鉄筋コンクリート造
建物階
地上6階 地下1階 / 3階部分
築年月
平成9年7月
土地権利
所有権
管理費(月額)
8150円
修繕積立金(月額)
15800円
駐車場
無し
管理会社
長谷工コミュニティ沖縄
管理形態
全部委託
現況
空室
引き渡し
相談
取引形態
専任
設備
電気、都市ガス、エアコン、温水洗浄便座、給湯、シューズクローゼット、浴室乾燥機、エレベーター
備考
○金城小学校まで徒歩約4分(約350m)
○金城中学校まで徒歩約5分(約400m)
































金城小・中エリアで物件をお探しの方、お待たせいたしました!!モノレール「小禄駅」と金城小・中、そしてイオン那覇店徒歩圏内の分譲マンション登場!小・中学校とスーパーが徒歩圏内で立地は最高です(^O^)また、室内キレイで専有面積は80㎡以上の4LDK、南東向きの角部屋で日当たり良好★